Endo 3 Drewniany Kosztorys

Endo 3 drewniany kosztorys. W domu Endo 3 nie znajdziemy niepotrzebnych detali architektonicznych które mogłyby skomplikować przebieg budowy oraz podnieść jej koszty. Suma powierzchni wszystkich pomieszczeń mieszkalnych pomniejszona o pow.

Projekt Domu Endo 3 Drewniany Tub 353 191 99m Projekt Domu Endo 3 Drewniany Tub 353 191 99m

22-14 m i niewliczana dla niższych niż 14 m.

Endo 3 drewniany kosztorys. Twoje zamówienie zostało przyjęte. Zachwyca przy tym elegancją proporcjonalnej bryły. Zamów darmowe koszty budowy.

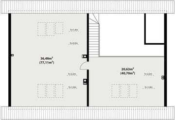
Oszacowanie kosztów budowy dla projektu Endo 3 drewniany Rysunki techniczne projektu Endo 3 drewniany Zamawiając wskazane informacje potwierdzam że chcę być informowany o produktach oferowanych przez serwis wybieramprojektpl aktualnych rabatach i ofertach specjalnych na te produkty. Przestronna część dzienna to duży salon jadalnia otwierająca Read more. Parter w projekcie Endo 3 to typowa strefa dzienna.

Endo 3 zachwyca elegancją i estetyką elewacji połączoną z optymalnym ale i ciekawym układem pomieszczeń. Jest liczona w 100 dla pomieszczeń o wysokości powyżej 22 m w 50 dla pomieszczeń o wys. Gotowy projekt domu Endo 3 to jednorodzinny dom parterowy z użytkowym poddaszem.

Endo drewniany- projekt domu. 1941 x 2371 m. Zastosowano schody na strych nieużytkowy który można zaadaptować na pokoje lub pozostawić otwartą przestrzeń przeznaczoną na suszarnię Read more.

Modyfikacje wielkości ilości i kształtu otworów okiennych i drzwiowych. 1941 x 2371 m. Jest to bardzo wygodny prosty i funkcjonalny dom który swoim pełnym programem zapewnia optymalny komfort 4-osobowej rodzinie.

Do 300 zł taniej z kodem rabatowym. Potwierdzenie zamówienia przesłaliśmy na Twój adres email. Wygodny z przestronną i otwartą częścią dzienną oraz wydzieloną częścią nocną z czterema sypialniami i łazienką.

Endo drewniany jest projektem domu jednorodzinnego bez garażu bez podpiwniczenia energooszczędnym lubianym sprawdzonym parterowego tanim w budowie w stylu nowoczesnym w stylu tradycyjnym w technologii murowanej z dachem dwuspadowym z dużą kotłownią z dużym salonem z kosztorysem z ustawnym salonem z zamkniętą kuchnią ze spiżarnią przy kuchni. W części intymnej tej kondygnacji przewidziano 3. Dzięki temu projekt jest nietrudny i niedrogi w realizacji oraz późniejszej eksploatacji.

Dom jednorodzinny parterowy niepodpiwniczony z dwustanowiskowym garażem. Z planzpl wybudujesz dom według gotowego projektu domu Endo 3 drewniany. 1941 x 2371 m.

Z uwagi na prostotę jest to dom tani w realizacji i niedrogi w eksploatacji. Salon kuchnia z jadalnią i wc. DOMPL - Projekt domu TP Endo 3 drewniany CE - DOM TP2-11 - gotowy koszt budowy.

Jest to wyjątkowo funkcjonalny dom przeznaczony dla 4-osobowej rodziny. Endo 3 drewniany to dom energooszczędny ujęty w prostą bryłę przykrytą dwuspadowym dachem. Endo drewniany - projekt domu Biuro Architektoniczne Archetyp.

Zmianę usytuowania i kształtu tarasu podniesienie ścianki kolankowej zmianę wysokości budynku. Gwarantowane 1500 zł za adaptację projektu do działki. Parterowy dom jednorodzinny z dwustanowiskowym garażem łączący nowoczesny charakter elewacji z prostym klasycznym układem pomieszczeń.

Gotowy projekt domu TP Endo drewniany CE - 22 000 projektów domów Tu znajdziesz dom Twoich marzeń - gotowe i indywidualne rozwiązania największy wybór Doradzimy Ci -. Sprawdź przybliżone koszty budowy. Zmiany w projekcie Endo drewniany Do zakupionej u nas dokumentacji 4 egzemplarze projektu dołączamy automatycznie zgodę na następujące zmiany.

Koszty budowy domu rysunki szczegółowe do projektu Endo 3 drewniany. Cena przy zakupie z projektem. Planowany termin budowy domu.

Kupując projekt z naszej oferty masz pewność że za adaptację domu do działki zapłacisz tylko 1500 zł netto oraz dostaniesz bezpłatną wycenę pełnobranżowej adaptacji. Garażu kotłowni strychu piwnicy. Endo 3- projekt domu.

Projekt Domu Endo 3 Drewniany 191 99 M Koszt Budowy Extradom Projekt Domu Endo 3 Drewniany 191 99 M Koszt Budowy Extradom

Projekt Domu Endo Drewniany 114 19 M Koszt Budowy Extradom Projekt Domu Endo Drewniany 114 19 M Koszt Budowy Extradom

Projekt Domu Endo 4 Brick Exterior House House Exterior Exterior Brick Projekt Domu Endo 4 Brick Exterior House House Exterior Exterior Brick

Projekt Domu Jednorodzinnego Endo 3 Drewniany In27 Wybieramprojekt Pl Projekt Domu Jednorodzinnego Endo 3 Drewniany In27 Wybieramprojekt Pl

Projekt Domu Endo 3 Drewniany 191 99 M Koszt Budowy Extradom Projekt Domu Endo 3 Drewniany 191 99 M Koszt Budowy Extradom

Projekt Domu Endo 3 Drewniany 191 99 M Koszt Budowy Extradom Projekt Domu Endo 3 Drewniany 191 99 M Koszt Budowy Extradom

Projekt Domu Endo 3 Drewniany 191 99 M Koszt Budowy Extradom Projekt Domu Endo 3 Drewniany 191 99 M Koszt Budowy Extradom

Projekt Domu Endo 3 Drewniany 191 99 M Koszt Budowy Extradom Projekt Domu Endo 3 Drewniany 191 99 M Koszt Budowy Extradom

Projekt Domu Endo Drewniany 114 19 M Koszt Budowy Extradom Projekt Domu Endo Drewniany 114 19 M Koszt Budowy Extradom

Endo Drewniany Projekt Domu Biuro Architektoniczne Archetyp Endo Drewniany Projekt Domu Biuro Architektoniczne Archetyp

Projekt Domu Endo 3 Drewniany 191 99 M Koszt Budowy Extradom Projekt Domu Endo 3 Drewniany 191 99 M Koszt Budowy Extradom

Projekt Domu Endo 3 Drewniany 191 99 M Koszt Budowy Extradom Projekt Domu Endo 3 Drewniany 191 99 M Koszt Budowy Extradom

Projekt Domu Endo Drewniany House Styles House Home Projekt Domu Endo Drewniany House Styles House Home

Projekt Domu Endo 3 Drewniany 191 99 M Koszt Budowy Extradom Projekt Domu Endo 3 Drewniany 191 99 M Koszt Budowy Extradom

Projekt Domu Endo 3 Drewniany 191 99 M Koszt Budowy Extradom Projekt Domu Endo 3 Drewniany 191 99 M Koszt Budowy Extradom

Projekt Domu Endo 3 House Styles Outdoor Decor House Projekt Domu Endo 3 House Styles Outdoor Decor House

Dom Pl Projekt Domu Tp Endo 2 Drewniany Ce Dom Tp1 96 Gotowy Koszt Budowy Dom Pl Projekt Domu Tp Endo 2 Drewniany Ce Dom Tp1 96 Gotowy Koszt Budowy

Source: pinterest.com